Õmbluse katastriüksuse ja lähiala detailplaneeringu eelnõu avalik väljapanek ja avalik arutelu
Kihnu Vallavalitsus teatab
Õmbluse katastriüksuse ja lähiala detailplaneeringu eelnõu avalik väljapanek ja avalik arutelu
- Õmbluse katastriüksuse ja lähiala detailplaneeringu avalik väljapanek toimub 02.10.2023-02.11.2023.
- Õmbluse katastriüksuse ja lähiala detailplaneeringu avalik arutelu toimub 15.11.2023 kell 13.00 Kihnu Rahvamajas.
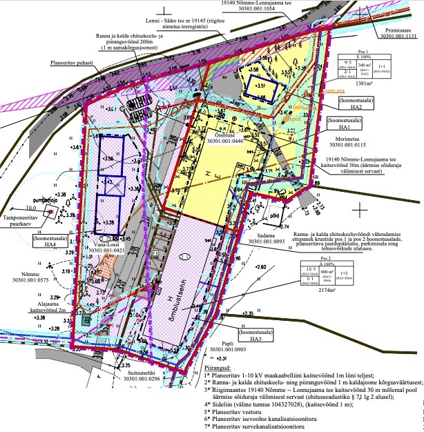
Planeeringuala hõlmab Õmbluse ja Vana-Lossi kinnistuid. Planeeringuala teenindavad tehnovõrgud (vaata joonis Tehnovõrkude skeem) kulgevad üle järgmiste kinnistute: Suitsutsehhi (30301:001:0296), Saaru (30301:001:0740), Jõujaam-Töökoja tee (30301:001:1147), Kivilaeva (30301:001:0933), Jõujaama (30301:001:0156), Jõujaam-Sadama tee (30301:001:0965), Nõmme-Lennujaama tee (30301:001:1054), Printsisaare (30301:001:1131).
Kihnu saare kirdeosas paiknev planeeringuala suurusega ~0,4 ha on pea kõigist külgedest piiratud hoonestatud katastriüksustega ning asub sadamast linnulennult ca 400 m kaugusel.
Detailplaneeringu eesmärgiks on ehituskeeluvööndis asuva vana vabrikuhoone rekonstrueerimine, ehitusmahtude suurendamine ning Õmbluse kinnistu jagamine elamumaaks ja ärimaaks. Detailplaneering on üldplaneeringut muutev. Ärimaale soovitakse huvitatud isiku poolt rajada väike spa-hotell (paari sauna ja väiksema basseini/vanniga veeala koos majutusega ca 40-le inimesele), restoran ja konverentsiruum. Lisaks soovitakse leida lahendus juurdepääsu tee osas ning parkimisele ja arendada välja tehnosüsteemid. Planeeringuga antakse ehitusõigus koos hoonestusala ja arhitektuursete nõuetega ning tehnovõrkude, heakorra ja haljastuse lahendused. Juurdepääsuteena kasutatakse olemasolevat Nõmme-Lennujaama (19140) riigiteed.
Detailplaneeringu materjaliga on võimalik tutvuda Kihnu Vallavalitsuses ja Rahvamajas tööpäevadel 9.00-16.00 ning Kihnu valla veebilehel www.kihnu.ee/detailplaneeringud.
Kui Teil on planeeringu eelnõu osas ettepanekuid, siis palume Teil need edastada Kihnu Vallavalitsusele e-posti (info@kihnu.ee) või kirja (Pärnumaa, Kihnu vald, Linaküla, Kooli/1, 88003) teel hiljemalt 02.11.2023.a.
Ootame Teie ettepanekuid ja osalemist!
- Täiskasvanute pilliõpe Metsamaal
- 55+ kohtumine
- Koostöökogu muuseumis
- Vabariigi aastapäeva vastuvõtt rahvamajas
- Eesti filmi päev Metsamaal koos koolilaste snäkibaariga
- Naistepäeva pidu rahvamajas
- Täiskasvanute pilliõpe Metsamaal
- Tantsulaager rahvamajas
- Tantsulaager rahvamajas
- “Tantsud tähtedega” rahvamajas
- Tantsulaager rahvamajas
- Eakate ja vanemaealiste kokkusaamine
- Pärnumaa viiuldajate näituse avamine kontserdiga muuseumis
- Kihnu Kudumisfestival 16.-19. aprill
- XI Kihnu Räimeretk
- Emadepäeva kontsert rahvamajas
- Pillilaste kevadkontsert
- Visioonikonverents
- Kihnu Sitsisõit
- Miinusbaaris hooaja avapidu